Der Entwurf für das neue Quartier auf der Überseeinsel versteht sich als zeitgemäße Interpretation der Bremer Hafengeschichte und als Antwort auf die Anforderungen des demografischen Wandels. Vier Punkthäuser, die sogenannten „Daltons“, bilden als klare städtebauliche Figuren ein markantes Ensemble mit hanseatischer Zurückhaltung und bürgerlichem Selbstbewusstsein.
Die Gebäudetypen folgen einem modularen Aufbau, der hohe Flexibilität in der Grundrissgestaltung ermöglicht. Das Grundraster beruht auf 62,5 cm.
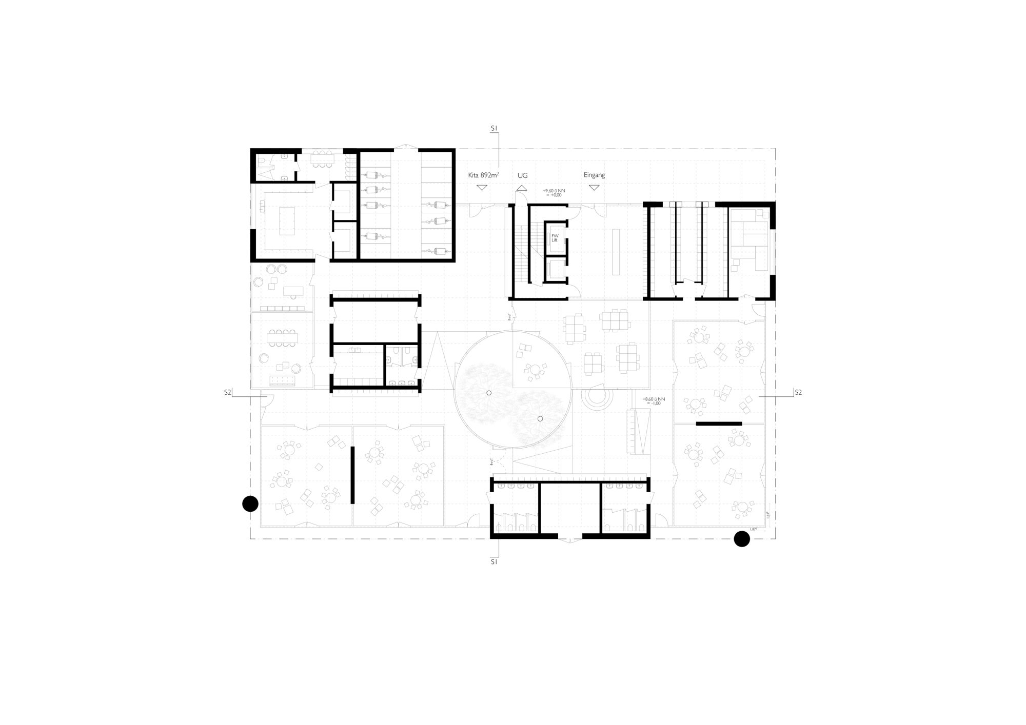
Typ 1: wird zweiseitig über vorgelagerte Laubengänge erschlossen, an die pro Seite 3 × 8 Module angebunden sind. Zwei Fluchtrichtungen, ein Schachteltreppenhaus mit außenliegenden Treppen und zwei Aufzügen, die sich zum Außenraum öffnen, gewährleisten Sicherheit und Komfort. Die Gemeinschaft orientiert sich zu einem begrünten und windgeschützten Hof.
Typ 2: besitzt eine Mittelkorridor-Erschließung, an die pro Seite 2 × 11 Module angebunden sind. Zwei Treppen im Schachteltreppenhaus und zwei Aufzüge stellen die vertikale Erschließung sicher.
Alle Erschließungsflächen sind tagesbelichtet und bieten Aufenthaltsqualität. Breite Laubengänge und großzügige Begegnungszonen fördern soziale Interaktion.
Das Wohnungsangebot umfasst sechs verschiedene Zuschnitte pro Typ, die sich von zwei bis sechs Modulen variieren lassen. Die rechteckige Modulstruktur ermöglicht eine klare Zonierung von dienenden und Aufenthaltsräumen und bietet dadurch einen hohen Grad an Flexibilität.
Typ 1: durchgesteckte Wohnungen mit drei Modulen Tiefe und zweiseitiger Belichtung über einen Innenhof / 48 Module pro Geschoss.
Typ 2: Wohnungen mit zwei Modulen Tiefe / 44 Module pro Geschoss.
Jede Wohnung verfügt über einen wettergeschützten Freisitz. Die Grundrisse sind so angelegt, dass sie selbstständiges Wohnen ebenso ermöglichen wie die Integration gemeinschaftlicher oder sozial förderlicher Elemente. Eine hohe Durchmischung von Wohnungstypen gewährleistet ein gestapeltes Mehrgenerationenhaus und fördert das gesellschaftliche Miteinander.